Leave a Message

Thank you for your message. We will be in touch with you shortly.

Explore Our Properties

Property Description

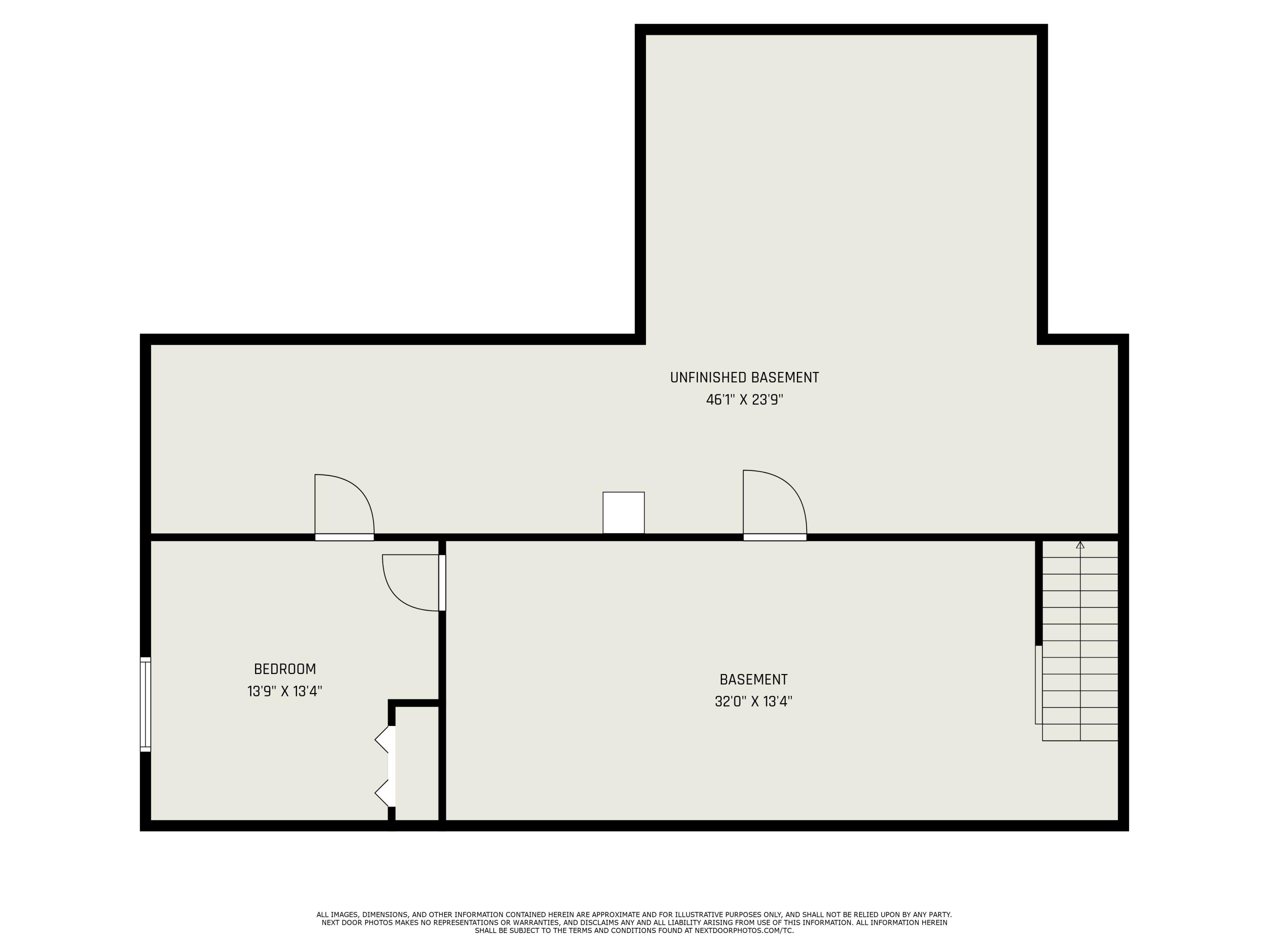
Welcome to this charming move-in ready 3-bedroom, 2-bathroom, ranch home in the highly sought-after Reeths-Puffer school district! The interior boasts an inviting living room fireplace and vaulted ceilings for a spacious feel. The kitchen features two large pantries, and the main floor offers convenience with a large laundry room and full bath. Enjoy the luxurious primary bathroom with a Jacuzzi tub and double vanity. This home also features a partially finished, and recently updated, basement with 8ft ceilings and recessed lighting. Relax outdoors on the front porch, back deck, or in the fenced yard. Three-stall heated attached garage, two storage sheds, and a second heated detached garage with a loft to cater to all your storage needs.
OPEN HOUSE: SUNDAY, 1/21, FROM 12PM-2PM

Overview

Property Status
Sold
Lot Size
1 Acres
MLS ID
24003590
Property Type
Residential
Year Built
2007

Features & Amenities

Total Area
1,432 Sq.Ft.
Neighborhood
Fruitland Township
Architecture Styles
Ranch
Stories
1
Garage Spaces
3.0
Water Source
Public
Utilites
Natural Gas Available, Electricity Available, Natural Gas Connected
Lot Features
Level, Cul-De-Sac
Parking
Detached, Attached
Heat Type
Forced Air
Air Conditioning
Central Air
Laundry Room
Main Level
Fireplace
Living Room, Wood Burning
Appliances
Dishwasher, Microwave, Range, Refrigerator
Other Interior Features
Ceiling Fan(s), Broadband, Garage Door Opener, Center Island, Pantry
Sewer
Public
School District
Reeths-Puffer
Sales Price
$310,000
Real Estate Tax
$3,181/yr

Downloads

55 Nancy Lane

Schedule a Tour

We would love to show you our beautiful property. Please select your preferred date and time below. An agent will be in touch shortly to confirm your appointment.

Thank you

for your interest in 55 Nancy Lane, Muskegon, MI 49445

55 Nancy Lane
Navigate
Fruitland Township

Explore Fruitland Township

read more
55 Nancy Lane
explore in 3d

I'm Interested In

55 Nancy Lane

or

Follow Us On Instagram