Leave a Message

Thank you for your message. We will be in touch with you shortly.

Explore Our Properties

Property Description

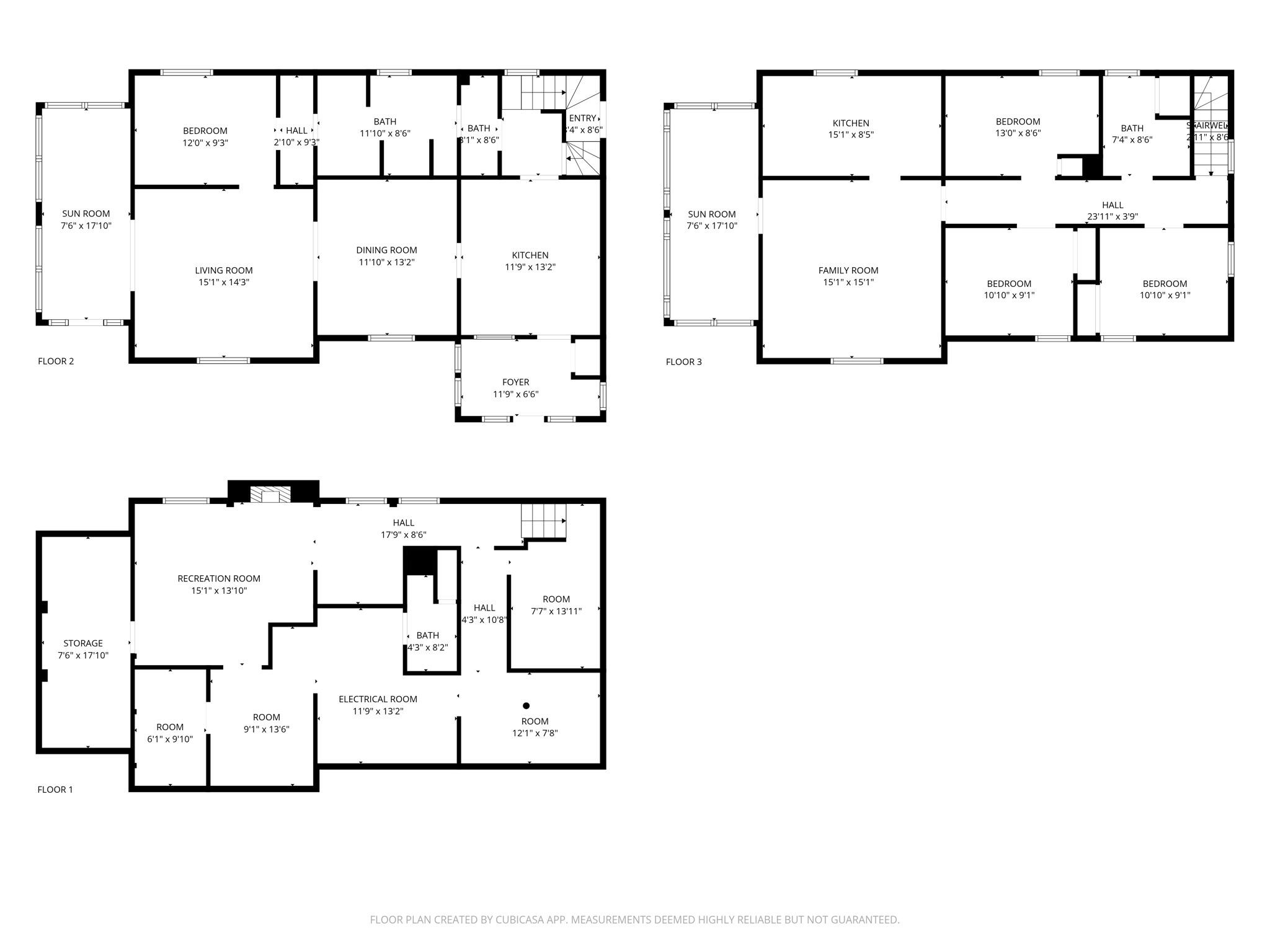
Sweeping lake views and refreshing breezes welcome you to this 4-bedroom, 3-bath home overlooking beautiful Muskegon Lake! This property offers endless possibilities--whether you're looking for a perfect fixer-upper, investment opportunity, vacation cottage, or year-round residence. The home's flexible layout allows for a potential two-unit conversion, featuring two kitchens (one on the main level and one upstairs). The main floor includes a bedroom, full bath, and laundry area, while the upper level offers three additional bedrooms, a full bath, and a separate outdoor entrance.You'll love the multiple four-season rooms showcasing stunning lake sunsets. The full lower level provides a fireplace, another full bath, and plenty of storage space. A rare bonus is the three-stall garage with a spacious office or workshop area--perfect for hobbies or remote work. Centrally located across from the marina and just one block from downtown North Muskegon, this home combines convenience, character, and incredible lake views.

Overview

Property Status
Sold
Lot Size
10,019 Sq.Ft.
MLS ID
25057558
Property Type
Residential
Year Built
1938

Features & Amenities

Total Area
2,065 Sq.Ft.
Neighborhood
North Muskegon
Architecture Styles
Traditional
Stories
2
Garage Spaces
3.0
Water Source
Public
Utilites
Phone Available, Natural Gas Available, Electricity Available, Cable Available
Roof
Composition
Parking
Detached
Heat Type
Forced Air
Laundry Room
Laundry Room, Main Level
Appliances
Dishwasher, Range, Refrigerator
Other Interior Features
Broadband, Eat-in Kitchen
Sewer
Public
School District
North Muskegon
Sales Price
$315,000
Real Estate Tax
$1,097/yr

Downloads

1854 Lake Avenue

Schedule a Tour

We would love to show you our beautiful property. Please select your preferred date and time below. An agent will be in touch shortly to confirm your appointment.

Thank you

for your interest in 1854 Lake Avenue, Muskegon, MI 49445

1854 Lake Avenue
Navigate
North Muskegon

Explore North Muskegon

read more
1854 Lake Avenue
explore in 3d

I'm Interested In

1854 Lake Avenue

or

Follow Us On Instagram